Supporting heavy plant on a delicate rooftop membrane

Published on: 14 October 2025

Background

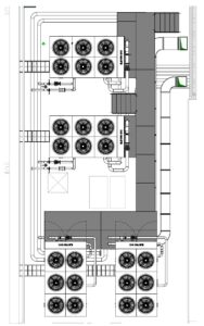
Western Build, operating across Ireland and the UK, recently took on a complex hospital rooftop project in Slough. To ensure both safety and optimal load distribution, Walraven worked with them on a design needing to deliver enhanced load capacity and flexibility for heavy chillers and condensers—one unit weighing as much as 3,300 kg—while protecting the delicate single-ply roof membrane.

Challenge: Heavy rooftop plant on a delicate membrane

The single-ply membrane could take a maximum of 10 kN per m², with only 10% allowable stress, meaning every kilo had to be carefully calculated and spread. On top of this, the rooftop layout was restricted, with a riser cutting through the available space. The supports had to carry very high loads while fitting seamlessly around obstacles and preserving the roof’s integrity.

Solution: Carefully designed support frames for optimal load distribution

Walraven’s technical team designed the system using a combination of Walraven Yeti® 335 and Yeti® 480 supports, paired with the Walraven RapidStrut® channel system. The larger Yeti® 480s provide extra load-bearing capacity where required, while the 335s continue to deliver flexible, modular support for lighter sections.

The RapidStrut® modular system allowed adaptable channel framing around the riser and other rooftop constraints. Detailed load calculations ensured all equipment remained within the roof’s structural limits, and the system preserves membrane integrity.

The updated rooftop installation now safely supports multiple high-load chillers and condensers, accommodating the heaviest units without compromising the membrane. Western Build delivered the project efficiently, backed by Walraven’s engineered solution and technical expertise.

We can support your rooftop challenges!

When rooftops demand both strength and sensitivity, Walraven’s Yeti® support feet and RapidStrut® channel system provide the reliability and flexibility to get the job done.

Need help with a challenging rooftop or plant installation? Get in touch with our technical team can design a tailored support solution that keeps your equipment secure and your surfaces protected.

Alternatively, you can find out more about the Walraven Rooftop Solutions, or view more case studies.

Find out more about Walraven Rooftop Solutions Read more case studies

 

Let's get in touch

Product wish list 0
To top
Close

International websiteOr visit our international website.